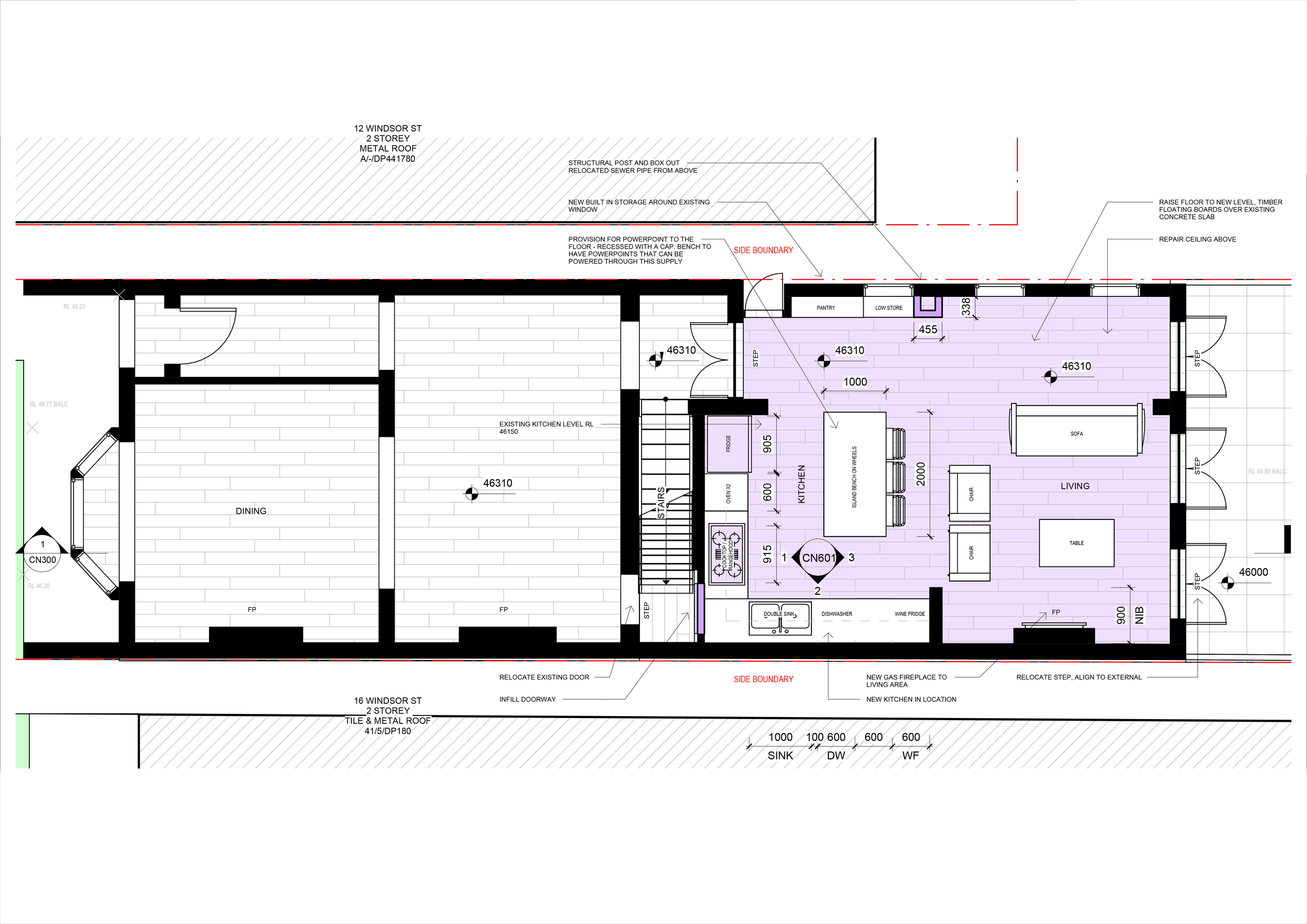
Windsor Street - Kitchen

House - Single Residency

2025-2026 (CDC Stage)

2026-Current (Under Construction)

Paddington, Sydney

Woollahra Municipal Council

In collaboration with John Normyle Design

This internal alteration and addition to a terrace in Windsor Street fell under a CDC application as all works where internal. These works involved the removal of two internal walls, as to open up the existing kitchen area into the rear living room.

The key challanges to this project was the coordination with the engineers on how to minimise the structural elements as to privide a clean ceiling to the new space.

We had an aim to make the kitchen more efficient as the previous was more than 30 years old. This involved pushing the cabinetry to the walls and creating a new more open space with the focus now being on an island bench in the middle of the space.

The project has been approved, and the works are currently in construction.