Moore Street

Commercial / Industrial - Fitout

2025 - Constructed

Leichardt, Sydney

Inner West Council

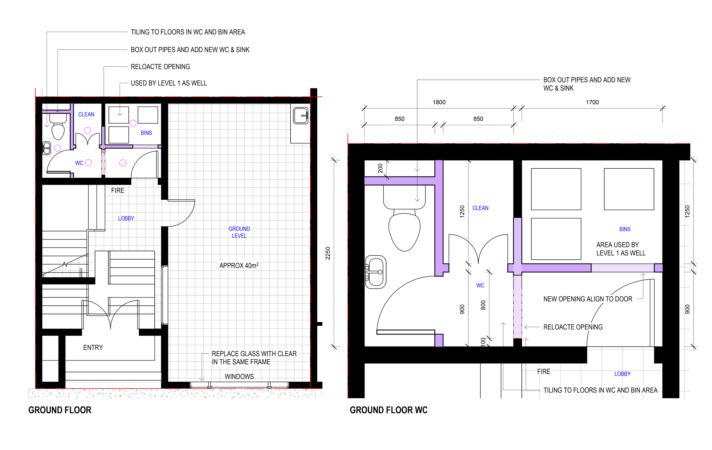
This project was for the commercial fitout of an existing light industrial building located in the suburb of Leichhardt. The Client wanted to split the existing tenancy into two independent areas, as the previous tenant only occupied two thirds of the space. They also requested a series of other updates as to modernise the internals to maximise the rental return.

The project involved a series of jobs to modernise the existing tenancies and to maximise the rental returns. The separation of the bathroom facilities by adding a new WC with Parisi Fittings and Fixtures, for the lower tenancy in addition to reworking the bin store and creating a small store. The next task was to refit the upstairs tenancy with a new kitchenette/ new ceiling/ new ducted AC and new electricals to make it a modern office space. The final phase involved a clean up of the common area and the external facade, which required new lighting and a fresh coat of paint to the whole building in a Dulux Rainmaker.